Tulsa Multicultural Center
Project Introduction: This project was designed for an Introduction to Architectural Interiors course in February 2023. The parameters were to design a Multicultural Center on a college campus setting. The Center will promote cultural literacy and competency, in hopes of building a more inclusive environment and provide cultural opportunities for its members. It serves as a second home for people of diverse racial and ethnic backgrounds. regardless of age, ethnicity or gender—members are welcomed, feel safe, and are encouraged to participate in its programs and events.
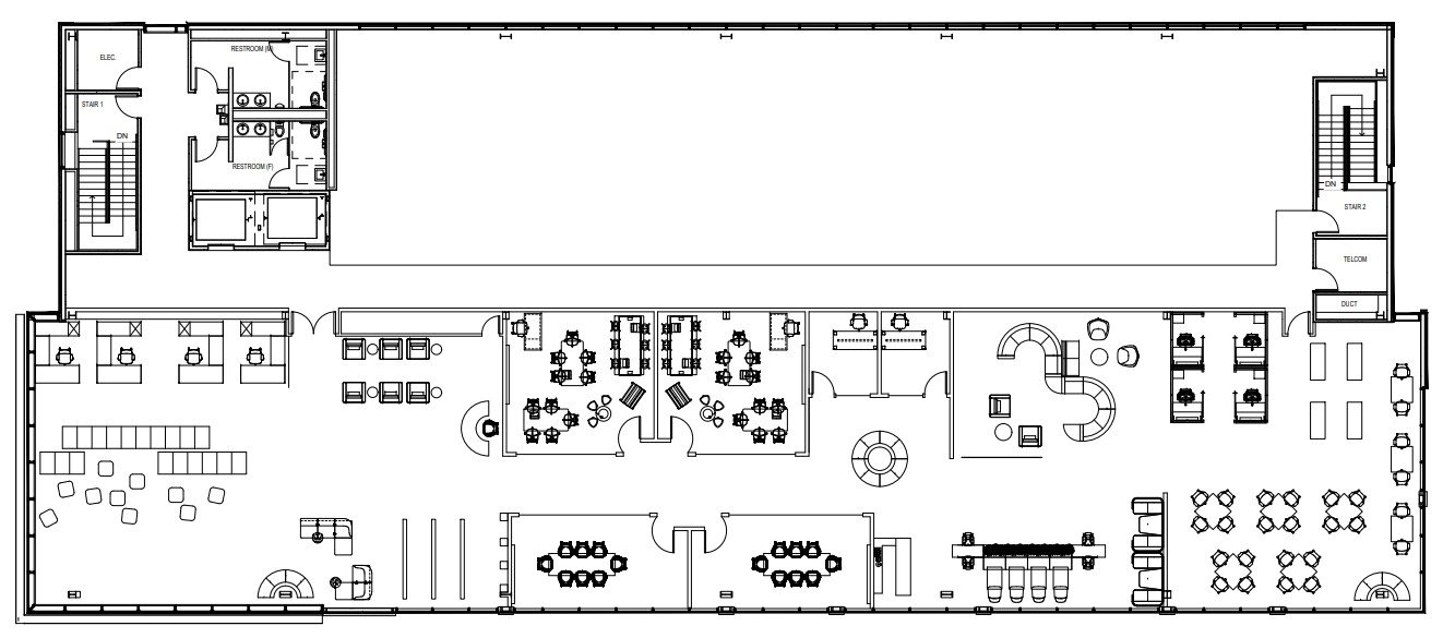
Design Concept: To create a multicultural center that draws from the idea of a cultural mosaic and features a series of different-colored open and enclosed spaces. This will create variety while also facilitating wayfinding.
Inspiration: This design draws from the idea of the cultural mosaic in both its programmatic and aesthetic aspects. The spaces are sequenced so that enclosed spaces follow open spaces and vice versa, tiled together much like a mosaic. This caters to the different privacy/socialization preferences of students from different cultural backgrounds. The main events space offers a dynamic partition to adjust to the size of student gatherings. The idea of the mosaic is abstracted into the visual by incorporating different accent colors in the different spaces to create a unique identity for each space. When considered as a whole, the different spaces give the student center a vibrant character. The colors do not correspond to specific cultures, but are simply meant to be a metaphor for co-existing cultural identities. The color palette will be inspired by Art Deco to add a sense of place.
Spatial Renderings
Supplementary Work

